Resale HDB 4RM - BLK 37, BEDOK STH AVE
This four-room HDB resale flat at Bedok South is designed with a practical contemporary approach, prioritizing functionality while introducing subtle lifestyle-driven upgrades. The layout has been carefully adjusted to better support modern living, including the introduction of a dedicated gaming room that doubles as a flexible workspace, reflecting the owner’s daily habits and interests.
To create a home that is highly tailored to the owner’s lifestyle—where practicality leads the design, but thoughtful spatial planning and subtle personalization ensure the space feels current, efficient, and easy to live in.
3D Visualisation
Through 3D visualisation, we transform concepts into immersive imagery that captures the essence of the design. Every scene highlights the play of light, texture, and proportion — enabling you to experience the space before it becomes reality













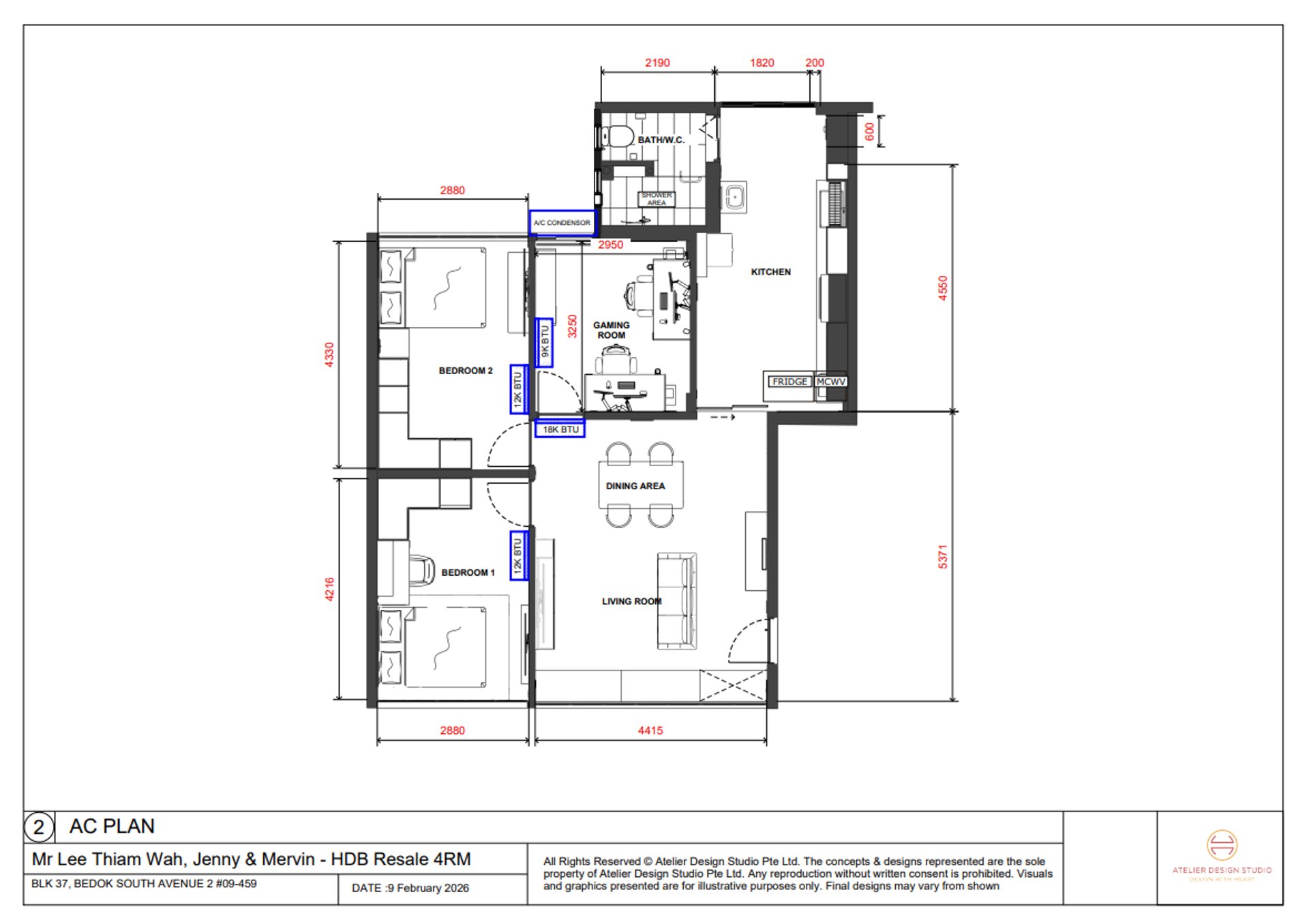
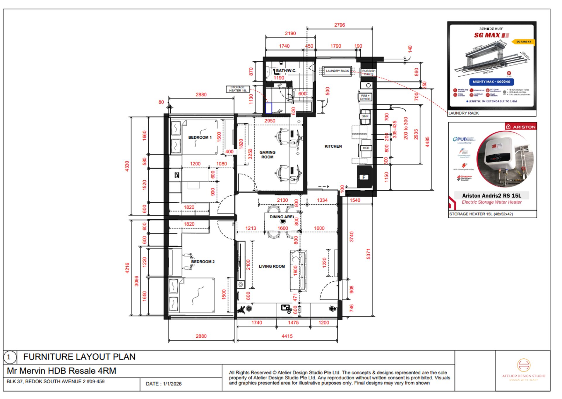
DETAILS DRAWING
Through detailed drawings and perspectives, we convey not just how the space looks, but how it feels to live within it.




























CARPENTRY DETAILS
Showcasing the craftsmanship behind each custom-made element — from wardrobes to feature panels — this section highlights the blend of design precision, material quality, and fine detailing that define the overall character of the interior









